BCW

Berufliche Schulen für Farbe und Gestaltung

Neubau der Beruflichen Schulen für Farbe und Gestaltung

Der Neubau als Solitär, freistehend und losgelöst von der Nachbarbebauung, reiht sich selbstbewusst in den städtebaulichen Kontext ein. Die Berufsschule soll als identitätsstiftendes Gebäude die Nachbarschaft bereichern. Im Neubau der Beruflichen Schulen für Farbe und Gestaltung werden zukünftig unter anderem Berufszweige aus dem Maler- und Lackierhandwerk, dem Vergolderhandwerk und dem Bereich Farb- und Lacktechnik unterrichtet. Neben den schulischen Räumlichkeiten umfasst das Bauvorhaben die Umsetzung einer 2-fach Sporthalle, einer Tiefgarage sowie einer Dienstwohnung für den Technischen Hausverwalter.

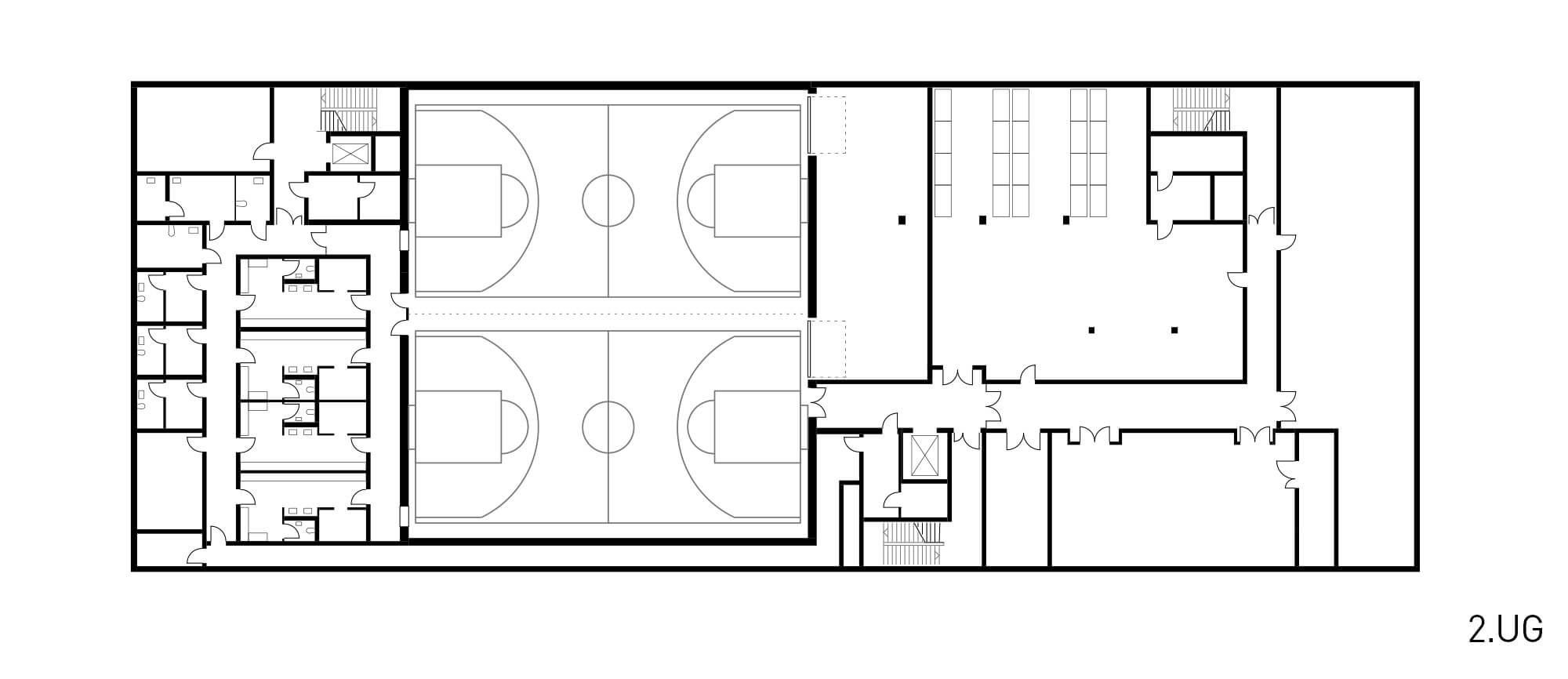
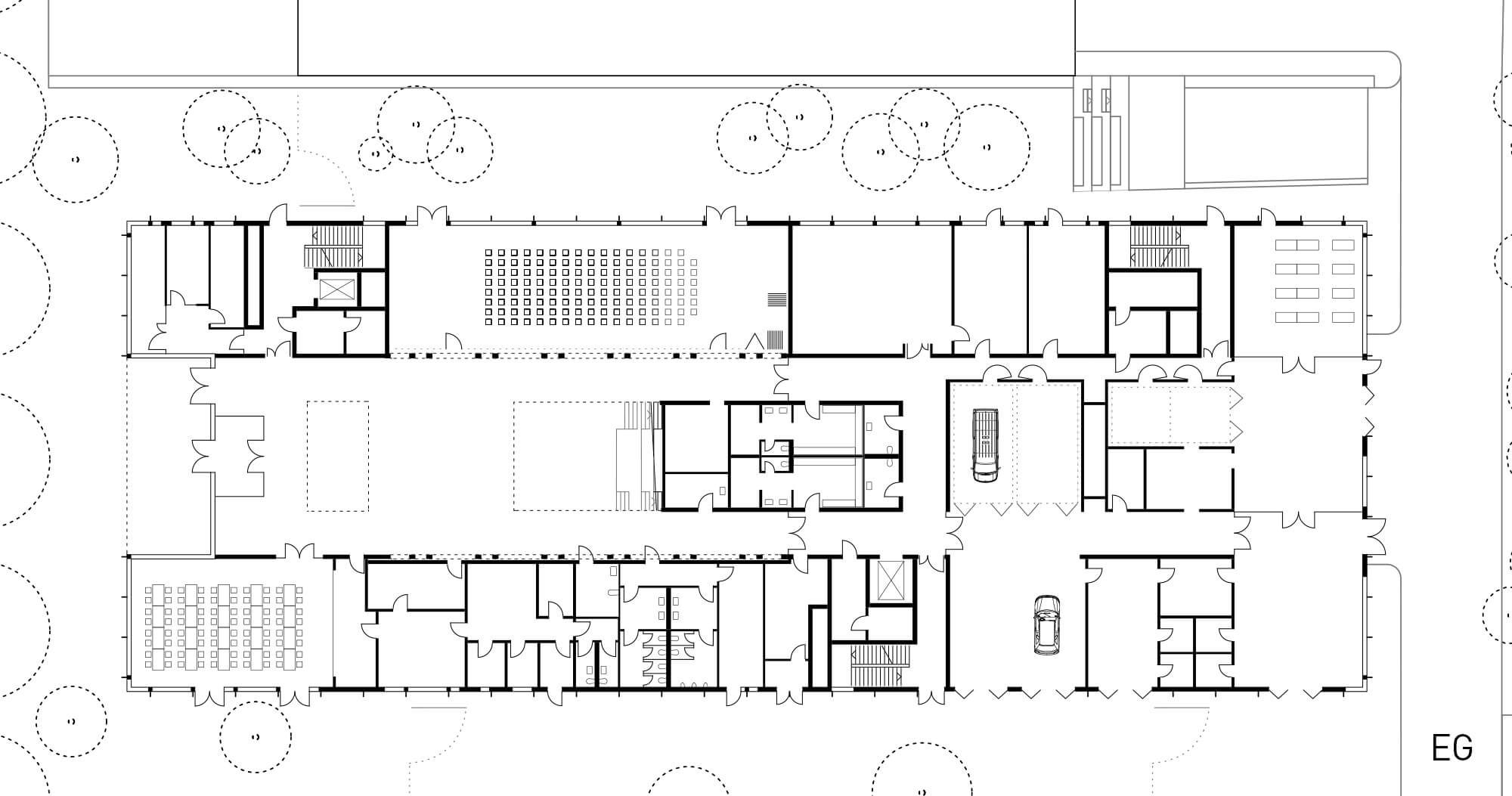
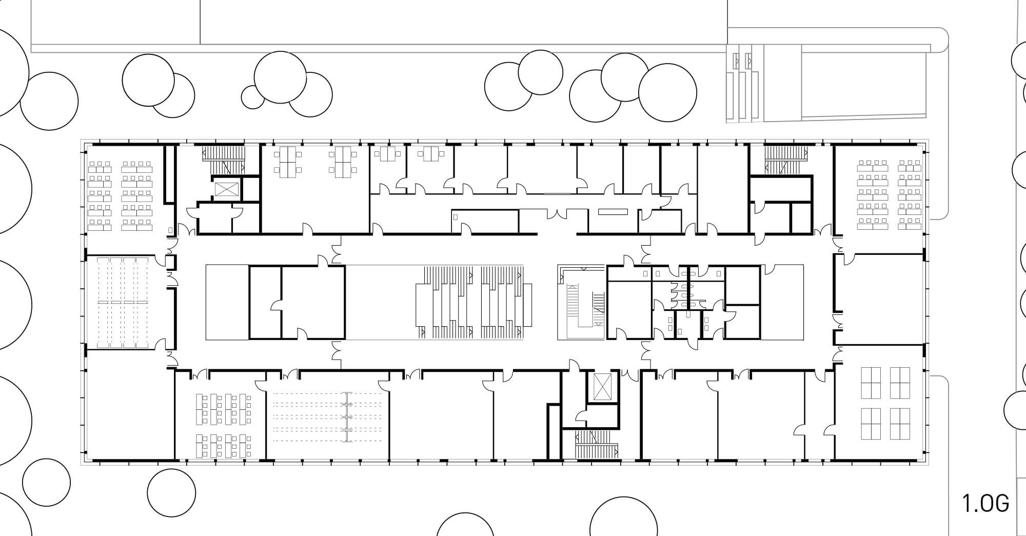
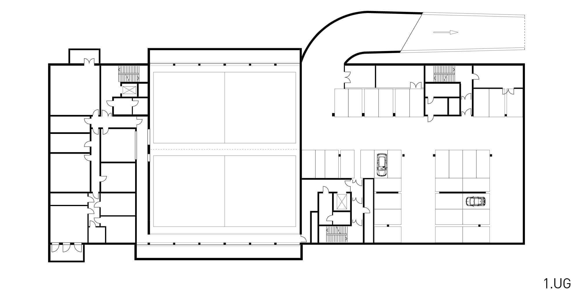
Die Unterrichtsräume und Werkstätten sind in den vier Obergeschossen im 'Äußeren Ring' entlang der Fassade untergebracht. Im Erdgeschoss befinden sich repräsentative und gemeinschaftliche Nutzungen wie die Pausen- und Ausstellungshalle, die Mensa und im rückwärtigen Bereich die Lackierhalle. Die Sporthalle erstreckt sich über die beiden Untergeschosse des Neubaus und kann über einen separaten Zugang auch von Vereinssportlern genutzt werden. Über Lichthöfe im Bereich der Mittelzone sind Blickbezüge über alle Ebenen möglich und es gelangt zusätzliches Tageslicht in die Pausen- und Ausstellungshalle.

Sowohl die Fassade als auch die Innenräume überzeugen durch ihren Werkstattcharakter. Die hellen und robusten Materialen und Oberflächen entsprechen der Nutzung und bieten einen neutralen Rahmen für kreative Tätigkeiten.

Projekt: Neubau der Beruflichen Schulen für Farbe und Gestaltung

Ort: München, Carl-Wery-Straße

Auftraggeber: Baureferat der Landeshauptstadt München

Leistungen: Objektplanung LP 2-5 HOAI

VGV-Verfahren: 2017

Baubeginn: 2021

Fertigstellung: 2025

BGF: 19.500 qm

Projekt Team: Tim Denninger, Jan Hertel, Markus Kilian, Diana Reichle, Michael Scholz mit Mara Bangert, Ilena Bosco, Lorena Castell Alegria, Rana Elkholi, Nadine Keabi, Kathrin Lefering, Olivia Lorscheid, Carina Schöneshöfer, Saskia Thielscher

Fotos: David Schreyer

expand_more

clear