BZL

Berufsschule

Form wahren, Technik erneuern

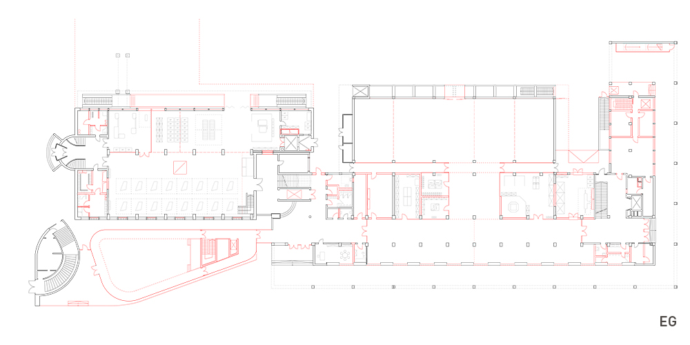
Die Gebäudeteile E + F des Berufsschulzentrum Luisenstraße 9-11 wurden 1956-1958 errichtet. Aufgrund der vorhandenen baulichen als auch organisatorischen Mängel werden die Gebäude grundlegend saniert und umgebaut. Durch den geplanten Auszug des Malerhandwerks wird ca. 1/3 des Gebäudes frei. Diese Räume können für eine schulorganisatorische Neuordnung genutzt werden, um die Raumfehlbedarfe der bestehenden Schulen abzudecken. Die Werkhallen und Labore werden den heutigen pädagogischen Anforderungen entsprechend umgebaut. Die heutigen Sicherheitsbedürfnisse im praktischen Unterricht und eine barrierefreie Erschließung aller Aufenthaltsräume werden dabei berücksichtigt. Die komplette Haustechnik wird neu installiert. Sämtliche Aussenbauteile werden nach aktuellen energetischen Anforderungen ausgebildet. Durch den Umbau und die Sanierung sollen weiterhin die Defizite in der öffentlichen Wahrnehmung durch eine transparente Gestaltung von z.B. Ausstellungsräumen und die architektonische Optimierung des Eingangsbereichs behoben werden.

Projekt: Generalsanierung Berufsschule Luisenstraße

Ort: München, Luisenstraße 9-11

Auftraggeber: Baureferat der Landeshauptstadt München

Leistungen: Objektplanung LP 1-5 HOAI

VOF-Verfahren: 2014

Baubeginn: 2020

Fertigstellung: 2025

BGF: 24.200 qm

Projekt Team: Tim Denninger, Jan Hertel, Markus Kilian, Diana Reichle, Michael Scholz mit Carlos Camp, Lorena Castell Alegria, Mu Chen, Chantal Feldhoff, Patrick Jantzen, Peter Knörr, Aurélia Louvel, Olivia Lorscheid, Josephine Lüders, Amna Mesic, Eva Münzesheimer, Kim Ohlmer, Ana Pariente Ramos, Elisabeth Quirl, Birte Schäfer, Max Seebach, Fabian Stolz, Georg Theisen, Lukas Wenzel, Charlotte Wermuth, Florencia Wibisono, Richard Ziegler

Rendering: Rendertaxi

expand_more

Impressionen von der Baustelle

© Fotos: Stefan Müller-Naumann, München

 

clear