F1B

Wohn- und Geschäftshaus

Temporäres Wohnen auf alten Strukturen

Modernisierung in der Bonner Innenstadt

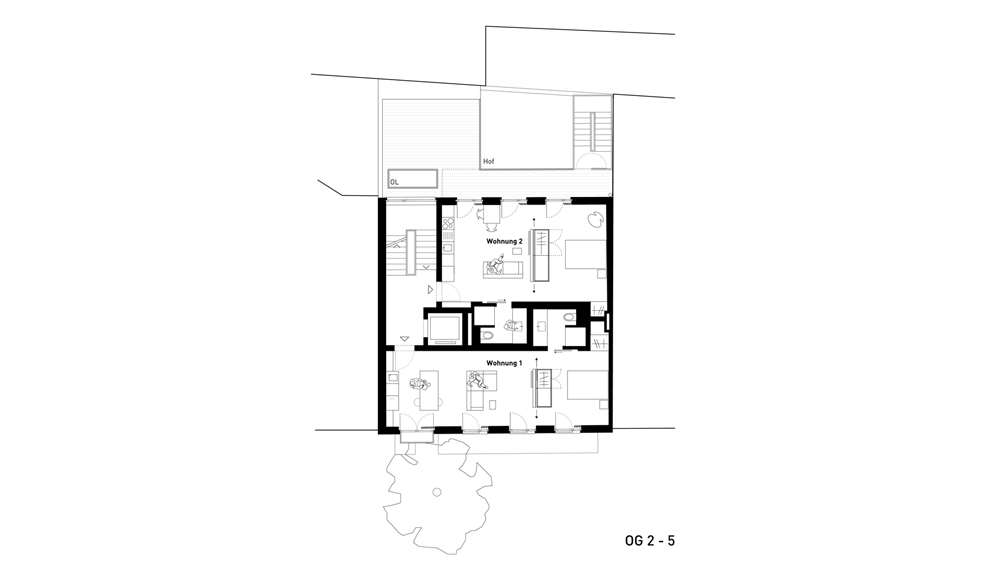
Ein vorhandenes Wohn- und Geschäftshaus in der Bonner Innenstadt wird aufgrund seiner desolaten Bausubstanz aus der Nachkriegszeit bis auf das Kellergewölbe abgebrochen und zeitgemäß verdichtet wieder aufgebaut. Neben dem großzügigen Ladenlokal im Erd- und 1. Obergeschoss entstehen moderne und spannend zonierte Appartments in den Obergeschossen. Die Appartments werden sorgfältig möbliert und zur temporären Vermietung vorgesehen. Die gelaserte Eingangstür verweist auf Charlotte von Schiller, die bis zu Ihrem Tode an diesem Ort lebte.

Projekt: Wohn-und Geschäftshaus

Ort: Bonn, Fürstenstraße 1

Auftraggeber: Privat

Leistungen: Generalplanung LP 1-9 HOAI

Baubeginn: 2016

Fertigstellung: 2017

BGF: 1050 qm

Projekt Team: Tim Denninger, Jan Hertel, Markus Kilian, Michael Scholz, Diana Reichle mit Fabio di Franco, Empar Molto-Sifre, Charlotte Wermuth

Innenausbau: Alv Kintscher

Fotos: Constantin Meyer, Köln

expand_more

clear