GYO

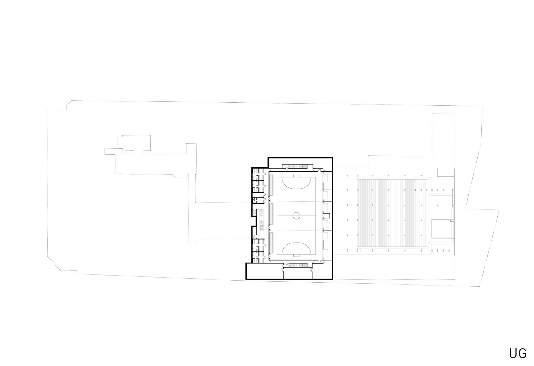
Gymnasium mit unterirdischer Sporthalle

Gymnasium Oberursel

Erweiterung zu einem 7-zügigen Gymnasium – die besondere Herausforderung des Projekts bestand darin, das große Bauvolumen auf dem sehr knappen Grundstück in den vorhandenen Kontext zu integrieren. Das städtebauliche Konzept reagiert auf die umliegende Wohnbebauung. Ein zentraler Schulhof bildet die Mitte des Ensembles. Von hier aus werden alle neuen Bauten erschlossen. Im 1. OG verbindet ein umlaufender Erschließungsring die Neubauten barrierefrei mit dem Bestand. Die Blickbeziehung zum zentralen Schulhof ermöglicht eine leichte Orientierung. Das neue Gebäude weist einen mit dem Passivhausstandard vergleichbar geringen Energieverbrauch auf (Primärenergiebedarf = 113 kWh/qma).

Projekt: Neubau und Erweiterung von 3 Klassenhäusern, Mensa und Aula für 1.700 Schüler, 3-fach Sporthalle, Ganztagsräume, naturwissenschaftliche Fachklassen, Mediothek, Tiefgarage für 120 Stellplätze
Ort: Zeppelinstraße 24, Oberursel
Auftraggeber: Hochtaunuskreis
Leistungen: Objektplanung, GP für Freianlagenplanung LP 1-9 HOAI, Bauphysik, Brandschutz
Wettbewerb: 2008 – 1. Preis
Baubeginn: 2010
Fertigstellung: 2013
BGF: 25.800 qm
Projekt Team: Tim Denninger, Jan Hertel, Markus Kilian, Diana Reichle, Michael Scholz mit Katharina Altwein, Imelda Braun, Felix Engelhardt, Fabio di Franco, Stefanie Hambsch, Claudia Simon, Volker Viviani, Charlotte Wermuth

Fotos: Constantin Meyer, Köln

Auszeichnungen:

Vorbildliche Bauten in Hessen 2017 (Besondere Anerkennung)

DMK-Award für nachhaltiges Bauen 2015 (1. Platz)

BDA-Preis "Ausgezeichnete Architektur in Hessen" 2013 (Johann-Wilhelm-Lehr Plakette)

expand_more

clear