LLO

Wohnungsbau

Dynamische Typologien zwischen Glasfabrik und Bahnhof

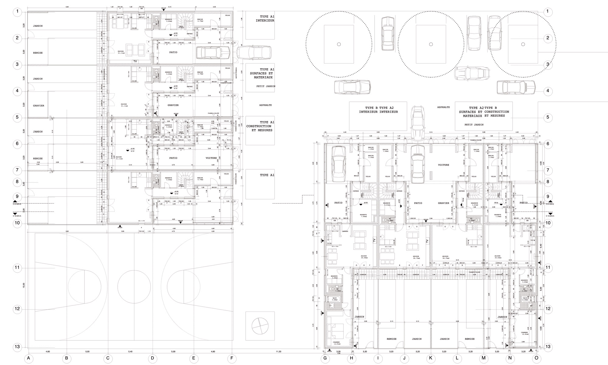
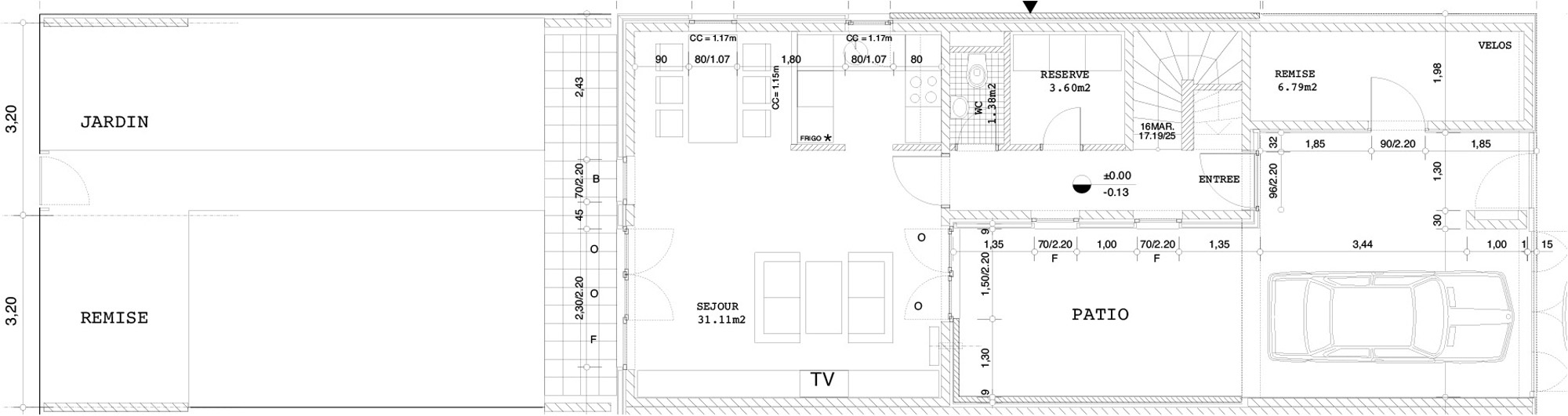
Die Neubaumaßnahmen von 100 Wohneinheiten und öffentliche Funktionen vor dem Bahnhof werden auf sogenannten 'Wohninseln' vorgesehen. Die Dimension der 'Insel' ist von den umgebenen Gebäuden abgeleitet und vermittelt zwischen den Reihenhäusern und den Straßenbahndepots. Die Positionierung der gebauten Strukturen auf einer Insel lässt zwei halböffentliche Plätze entstehen. Der 'harte' Platz vermittelt zwischen den Häusern und ihrer Anbindung an das vorhandene Straßennetz. Der 'weiche' Platz liegt zwischen den Häusern und dem vorhandenen Grün und dient Erholungszwecken. Die Wohnungen setzen die vorgefundene, traditionelle Typologie der zweigeschossigen Reihenhäuser fort und adaptieren sie an die Bedürfnisse der heutigen Gesellschaft: Der Gedanke des Gartens als Mittel des Selbstverständnisses und Verwirklichung wird fortgeführt und in seiner räumlichen Ausbildung neu interpretiert. Der typische Vorgarten der Reihenhaussiedlung wird zum Eingangshof / Patio, der das Haus mit dem Vorplatz der Wohninsel verzahnt. Der ehemalige Wirtschaftsgarten wird zum Garten, der das Haus mit der umgebenden Landschaft verbindet.

Projekt: La Louviére
, Neubau von 100 Wohnungen mit öffentlichen Nutzungen

Ort: La Louviére, Belgien

Auftraggeber: S.C. Le Foyer Louviérois


Leistungen: Objektplanung LP 2-5

Wettbewerb: EUROPAN 5, 1998 - 1. Preis

Baubeginn: 2004

Fertigstellung: 1. BA 2005, 2. BA 2009

BGF: 11.500 qm

Projekt Team: Tim Denninger, Michael Scholz mit Claude Defalque, Barbara Hurler, Patrick Longchamp

expand_more

clear