MER

Umbau Büro

Umgestaltung einer denkmalgeschützten Teppichfabrik

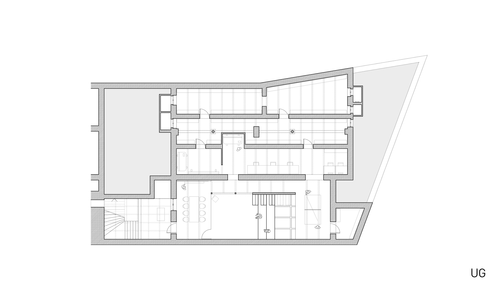
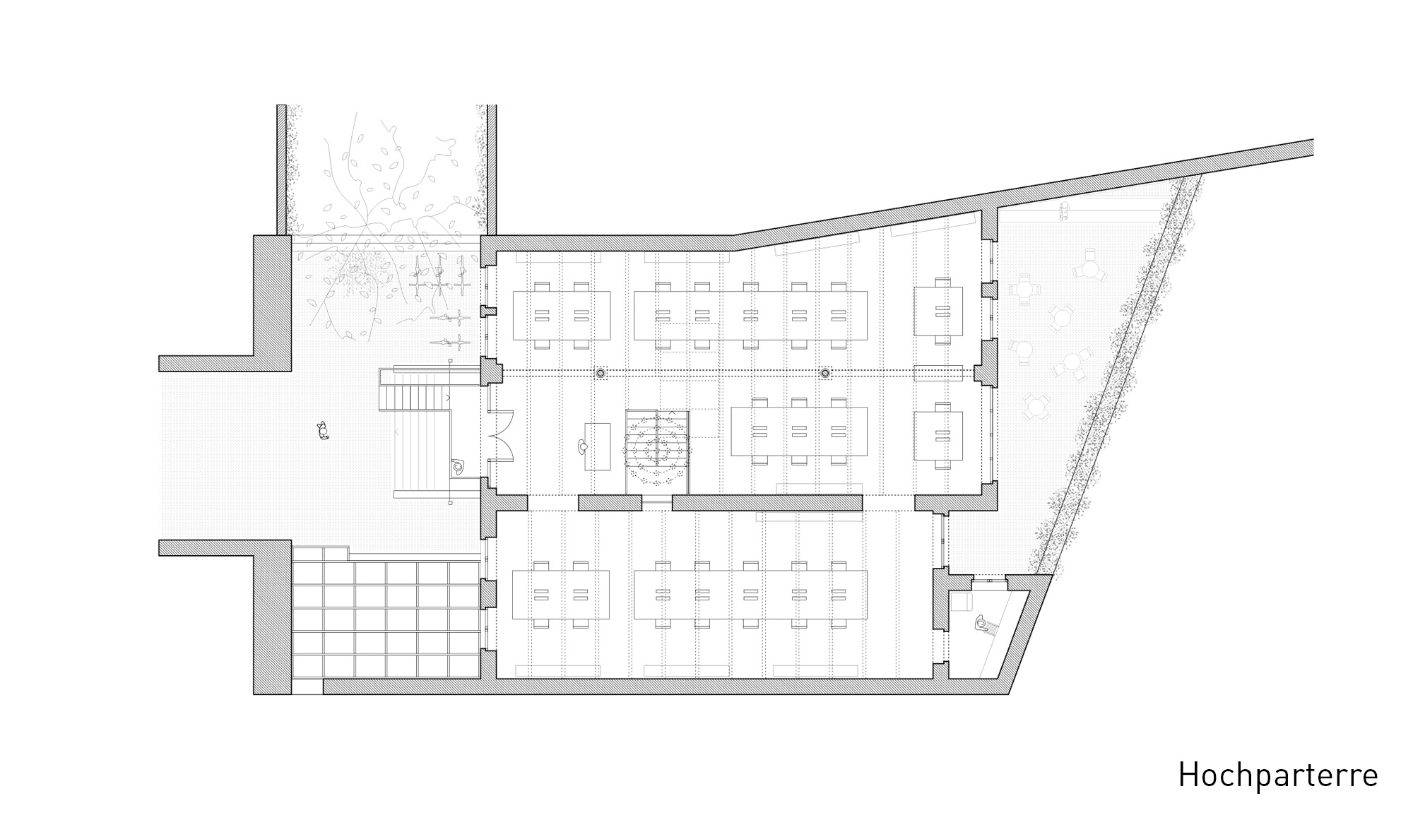
Das denkmalgeschützte Gebäudeensemble in der Kölner Südstadt wurde Ende des 19. Jahrhunderts errichtet und gehört zu den wenigen erhaltenen Anlagen dieser Zeit. Es umfasst ein straßenseitiges Vorderhaus mit Seitenflügeln sowie eine zweigeschossige Fabrikhalle, die den Hof abschließt. Die Fabrikhalle ist geprägt durch ihre ursprüngliche Fensterteilung, Kappendecken sowie eine Tragstruktur aus Stahlträgern und Stahlstützen. Diese baulichen Elemente dokumentieren die industrielle Nutzung und bilden die Grundlage für die geplante Sanierung und Umgestaltung. Ziel ist es, die historische Substanz zu sichern und gleichzeitig eine zeitgemäße Nutzung zu ermöglichen.

Im Rahmen der Maßnahmen wurden die Flächen instand gesetzt und zu einem offenen, lichtdurchfluteten Büro ausgebaut. Dabei wurden sowohl die funktionalen Anforderungen an moderne Arbeitswelten als auch die denkmalpflegerischen Vorgaben berücksichtigt, um eine nachhaltige Nutzung bei Wahrung des historischen Erscheinungsbildes sicherzustellen.

Projekt: Umbau Büro

Ort: Köln

Auftraggeber: privat

Leistungen: Objektplanung LP 2-8 HOAI

Verfahren: Direktbeauftragung

Baubeginn: 2021

Fertigstellung: 2021

BGF: 800 qm

Projekt Team: Tim Denninger, Jan Hertel, Markus Kilian, Diana Reichle, Michael Scholz mit Carina Schöneshöfer

Fotos: Constantin Meyer

expand_more

clear