NBS

Grundschule mit Sporthalle

Helles Holz als Hülle

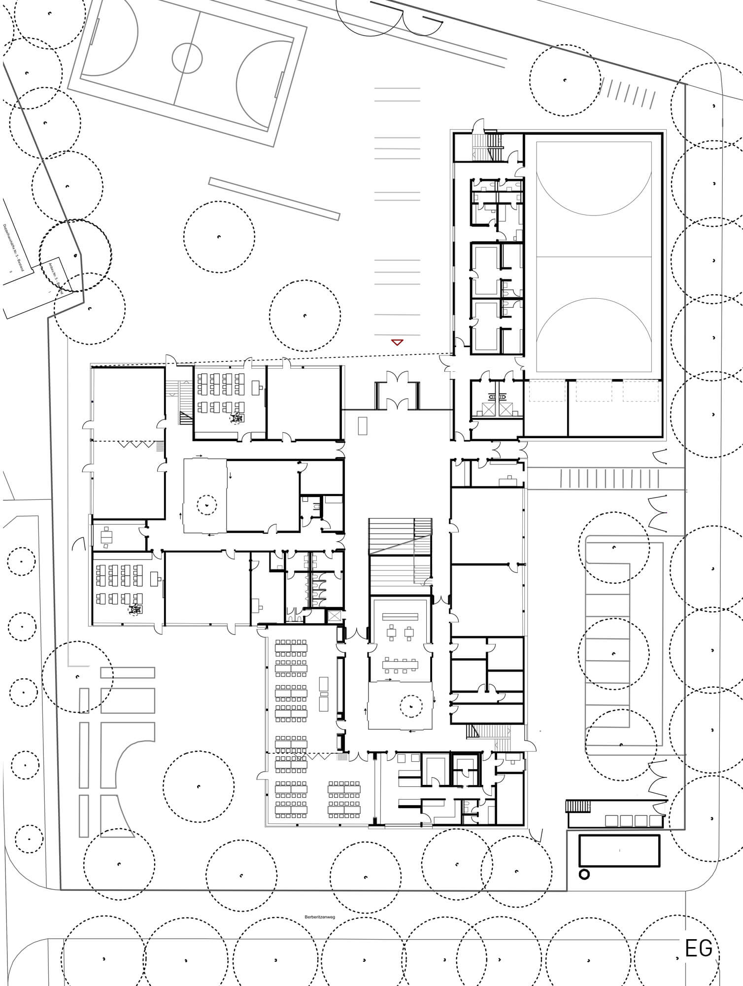
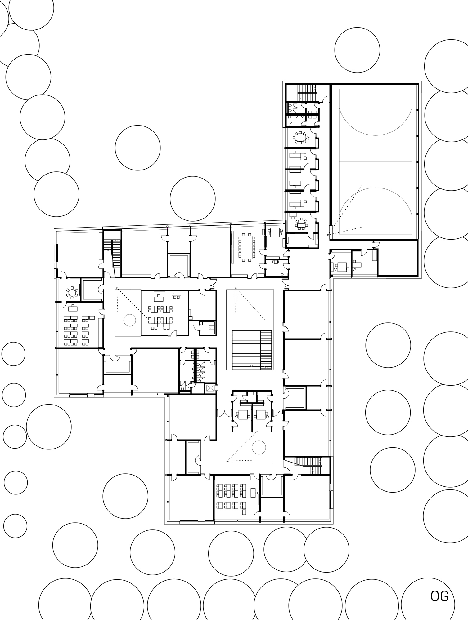
Das zweigeschossige Gebäude ist als dreizügige Grundschule mit Sporthalle für ca. 300 Schüler:innen konzipiert, bei der das Thema der Inklusion im Vordergrund steht.

Sie wird über den Schulhof von Norden her erschlossen. Ein klar ablesbarer überdachter Zugangsbereich führt in das Herzstück der Schule, die zentrale zweigeschossige Pausenhalle. Sie verbindet mit einer Sitztreppe beide Geschosse und bietet eine einfache Orientierung innerhalb des Gebäudes. Um die Halle herum sind die drei Gebäudeflügel angeordnet, die die unterschiedlichen Funktionen der Schule aufnehmen.

Als Pilotprojekt der Stadt Frankfurt werden die Cluster nach Passivhausstandard gedämmt und mit zwei unterschiedlichen Lüftungssystemen ausgestattet: mechanisch und natürlich. In einem Monitoring sollen Erkenntnisse über die nachhaltige Wirtschaftlichkeit gewonnen werden.

Projekt: Neubau der Grundschule Berkersheim

Ort: Frankfurt am Main, In den Gräben

Auftraggeber: Hochbauamt der Stadt Frankfurt

Leistungen: Generalplanung LP 1-9 HOAI

VOF-Verfahren: 2014

Baubeginn: 2016

Fertigstellung: 2019

BGF: 5.400 qm

Projekt Team: Tim Denninger, Jan Hertel, Markus Kilian, Diana Reichle, Michael Scholz mit Sebastian Arzet, Lisa Görke, Nathalie Gozdziak, Peter Knörr, Preslav Krastev, Kasia Osiecka, Timo Treuner

Fotos: Constantin Meyer, Köln

expand_more

clear