PKT

Krankenhaus

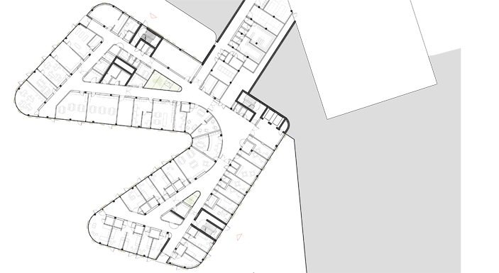
Talblick für alle Patientenzimmer

Der kleeblattartige Neubau setzt architektonisch ein neues Zeichen: Die Eingangssituation des Krankenhauses Tauberbischofsheim wird neu geprägt. Die geometrische Ausrichtung ergibt sich aus der Idee, den größten Teil der Räume auf den attraktiven Talblick auszurichten. Der weich geschwungene, kompakte Baukörper ermöglicht einen geringen Fußabdruck des Gebäudes mit relativ großen, parkähnlichen Freianlagen. Die Höhenstaffelung des Neubaus vermittelt zur umgebenden Bebauung.

Die Psychiatrie umfasst Pflegestationen, Tagesklinik, beschützte Station mit eigenem Dachgarten sowie einen Bereich für Kinder- und Jugendpsychiatrie. Der Anbau an das Hauptgebäude im Eingangsbereich und im UG erfolgte bei laufendem Krankenhausbetrieb.

Projekt: Erweiterung des Krankenhauses Tauberbischofsheim, Neubau der Psychiatrie

Ort: Tauberbischofsheim, Albert-Schweitzer-Str. 37

Auftraggeber: Krankenhaus und Heime Main-Tauber GmbH

Leistungen: Objektplanung LP 1-9 HOAI

Wettbewerb: 3. Preis – 1. Rang nach Überarbeitung 2011

Baubeginn: 2014

Fertigstellung: 2016

BGF: 9.200 qm

Projekt Team: Tim Denninger, Jan Hertel, Markus Kilian, Diana Reichle, Michael Scholz mit Marc Knechtges, Carlotta Estaún Martinez, Nana Schilling, Charlotte Wermuth

Fotos: Constantin Meyer, Köln

Auszeichnungen:

Beispielhaftes Bauen im Main-Tauber-Kreis 2017 (Auszeichnung)

expand_more

clear